Q: What are the characteristics and applications of crossed roller bearings?
A: The rolling elements of crossed roller bearings are cylindrical or tapered rollers arranged perpendicularly to each other at 90° in a V-shaped raceway. The rollers are separated by cages or spacers. This structure allows each bearing set to withstand axial loads, radial loads, and overturning moments. The inner and outer ring dimensions of crossed roller bearings are miniaturized, with ultra-thin versions approaching the limits of miniaturization. They also possess high rigidity and can achieve high precision levels. High-precision products are suitable for the joints and rotating parts of industrial robots, rotary tables in machining centers, precision rotary worktables, medical equipment, measuring instruments, and IC manufacturing equipment, etc. Characteristics of crossed roller bearings:
1. Excellent rotational accuracy: The internal structure of crossed roller bearings uses rollers arranged perpendicularly to each other at 90°, with cages or spacers between them. This prevents roller tilting, reduces mutual friction between rollers, and effectively prevents an increase in rotational torque. Furthermore, compared to using a steel plate retainer, there is no one-sided contact or locking of the rollers; and because the inner and outer rings are separate structures, the clearance can be adjusted, achieving high-precision rotational motion even under preload.
2. Simplified Operation and Installation: The outer or inner ring, separated into two parts, is fixed together after the rollers and retainer are installed, making installation easier and simpler.
3. Capacity for Large Axial and Radial Loads: Because the rollers are arranged perpendicularly to each other on the 90° V-groove rolling surface by a spacer retainer,
this design allows crossed roller bearings to withstand large axial loads, radial loads, and overturning moments in all directions.
4. Significantly Saves Installation Space
The inner and outer ring dimensions of crossed roller bearings are minimized to a minimum, especially the ultra-thin structure, which approaches the limit of small size while maintaining high rigidity. Therefore, it is suitable for precision workplaces with strict space requirements.
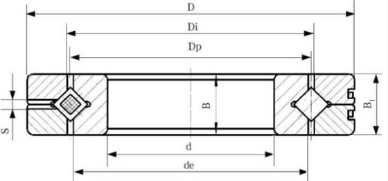
Common structures for crossed roller bearings include: RB type (integral inner ring, separate outer ring), RE type (integral outer ring, separate inner ring), RU type (integral inner and outer rings, with mounting holes), CRB (C, H.-) type (integral inner and outer rings, ultra-thin), SX type (integral inner ring, separate outer ring, ultra-thin), etc. See the figure below.


About LJHB:
LuoYang JinShuo Precision Bearing Co., Ltd. is mainly committed to the R&D and sales of high-precision bearings and other special products, and provides bearings and transmission parts with high performance for customers' equipment. With quick response, from pre-sales technical communication to on-time production delivery, as well as perfect after-sales service, we win the recognition and trust of customers.
Our main products include cylindrical roller bearings, tapered roller bearings, slew bearings, gear drives, spindle bearings, crossed roller bearings, turret bearings, thin-wall bearings, tandem roller bearings, spherical roller bearings, etc. The bearing dimensions rang from 100mm to 6000mm, the accuracy reaches P5, P4 and P2 levels. The bearing are widely used in mining and metallurgy, industrial equipment, industrial gearboxes, petroleum equipment, cranes, medical equipment, robotic equipment, etc. Among them, cylindrical roller bearings with better performance and high-precision deep groove ball bearings have been explored for high-speed tubular strander rotating cable equipment, which have completely replaced imports, saving customers costs and time, and improving work efficiency. It has been recognized and widely praised by customers.
Contact LJHB:
Address: Yiyang Bearing Industry Zone, Luoyang City, China 47100
Tel/Wechat: +86-18037970383
Whatsapp: +86-18037970383
Fax: 0086-379-65199160
E-mail: lyjh@lyjhbearing.com
Website: www.chinajhbearing.com